Rif: SAN LAZZARO DI SAVENA VIA NAZIONALE TOSCANA GRAZI
SAN LAZZARO DI SAVENA
BOLOGNA
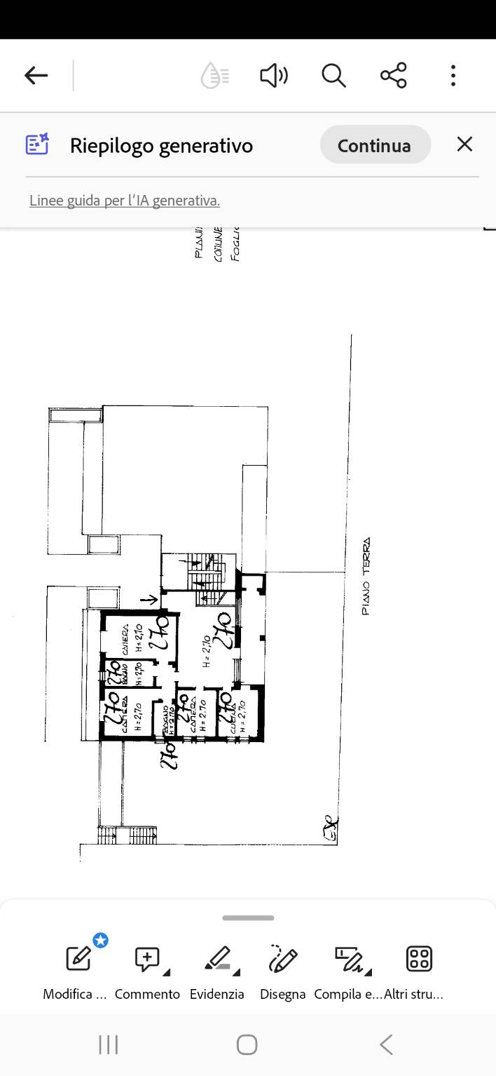
SAN LAZZARO DI SAVENA V.NAZIONALE TOSCANA INTERNO TRANQUILLO GRAZIOSO APPARTAMENTO COMPLETAMENTE ARREDATO DI TOT, MQ 120 CON BEL GIARDINO PRIVATO COMPOSTO DA INGRESSO SU SALA LUMINOSA, CUCINA ABITABILE , CAMERA MATRIMONIALE, CAMERA SINGOLA , UNO STUDIO , UN BAGNO FINESTRATO CON DOCCIA , UN BAGNO FINESTRATO CON VASCA . CANTINA E GARAGE . RISCALDAMENTO CENTRALIZZATO. CONTRATTO LIBERO. CANONE LOCAZIONE EURO 1300 MESE PIU' SP COND EURO 150 MESE. PER VISITE (+39) 335 8330330 PAOLA FERLINGHETTI AG IMM.RE
Consistenze
| Descrizione | Superficie | Sup. comm. |
|---|---|---|
| Principali | ||
| Immobile - piano terra | 120 Mq | 120 Mqc |
| Totale | 120 Mqc | |
